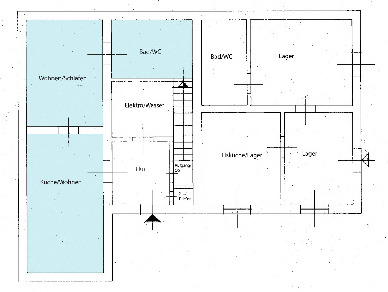
Kompakte Wohnung mit effizient genutzter Fläche und klarer Raumstruktur.
Brückengasse 4 - EG
Jetzt kontaktieren